2141 Highway 2
Summary
|
Beds
4
|
Baths
2
|
Single Family
2,595 sq ft
|
Storeys
3
|
Step into the timeless charm of the Manse House — a beautiful home in the heart of Milford, Nova Scotia. Rich in history, this century home has been lovingly maintained and thoughtfully updated, offering a rare blend of elegance, comfort, and classic East Coast character. Inside, you’ll find original details that tell a story—woodwork with history, sun-filled rooms with personality, and a layout that invites connection. The main level offers a spacious family room, formal dining room, cozy office, elegant kitchen, half bath, and a large living room perfect for gatherings and quiet evenings alike. Upstairs, four generous bedrooms, an oversized bath with a soaker tub, and upper-level laundry provide function without sacrificing charm. Downstairs, there’s even more flexibility with a rec room and an additional finished space currently used as a bedroom—ideal for guests, hobbies, or a creative studio. Outdoors, the magic continues. The property is beautifully landscaped and dotted with pear and apple trees, berry bushes, and blooming perennials. A covered porch and back deck create the perfect setting for afternoon teas, family BBQs, or peaceful morning coffees. Recent updates, including a brand-new steel roof (June 2025), new water softener (July 2025), paved driveway (2024), extension (early 2000s) ensure long-term peace of mind. This home is also on municipal sewage, making it much easier for maintenance! Set in a welcoming, walkable neighbourhood close to schools, trails, the community centre, and everyday amenities, the Manse House is more than a home—it’s a piece of Nova Scotia history waiting to be cherished.
Property Details
| Property Style | Residential |
|---|---|
| Zoning | R-2 |
| Building Style | Contemporary |
| Structure Style | Detached |
| Structures | Shed |
| Utilities | Cable, Electricity, High Speed Internet, Telephone |
| Roof | Metal |
| Flooring | Ceramic, Hardwood |
| Basement | Partially Developed, Undeveloped |
| Driveway | Paved, Single |
| Foundation | Poured Concrete |
| Exterior | Vinyl |
| Heating Type | Furnace, Heat Pump -Ductless, Stove |
| Fuel Type | Electric, Oil, Pellet |
| Water Source | Drilled Well |
| Sewage | Municipal |
| Building Age | 1876 Years |
| Year Built | 149 |
| Land Features | Cleared, Landscaped, Level |
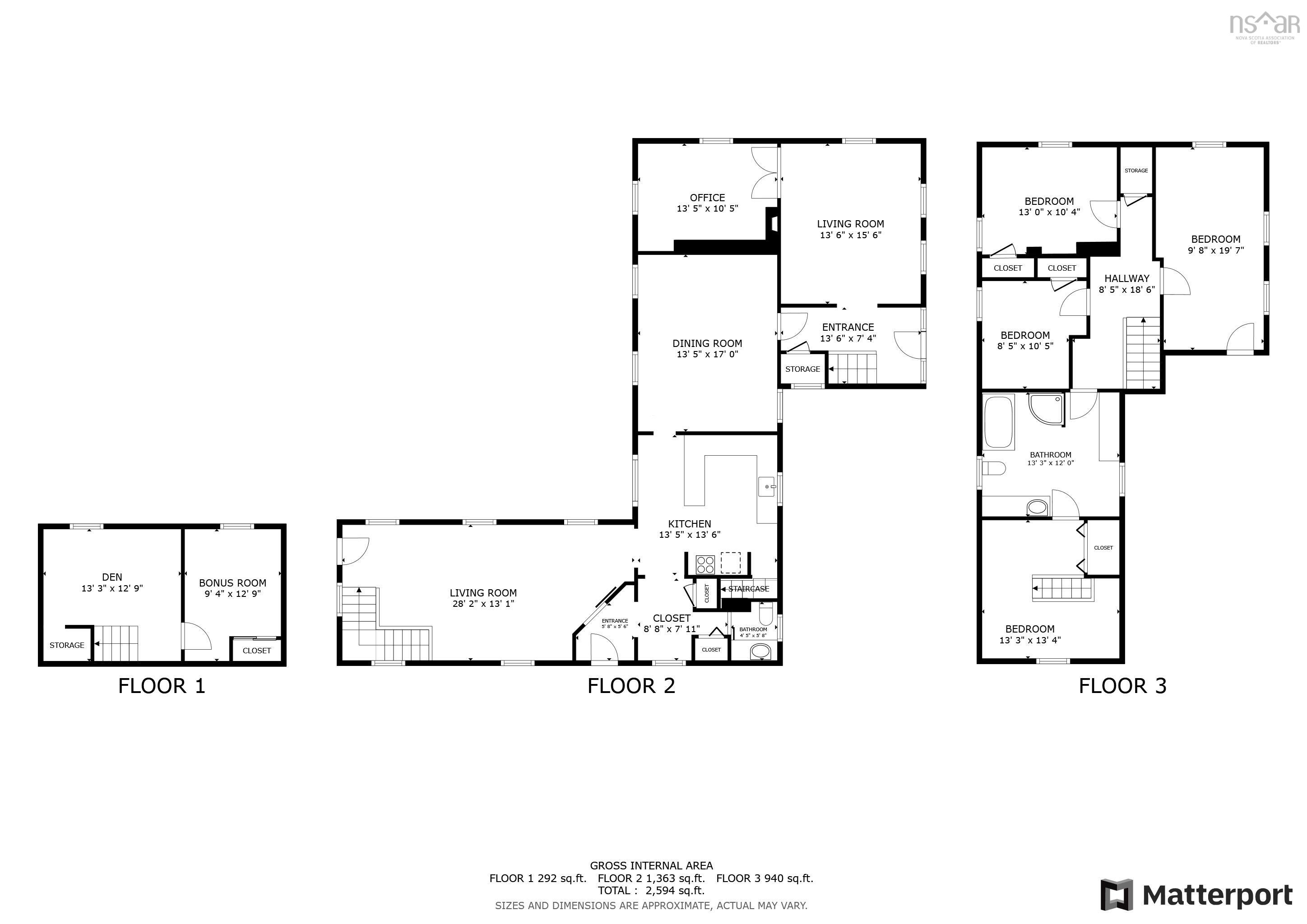
Measurements
| Main Living Area | 2,303 sq ft |
|---|---|
| Total Living Area | 2,595 sq ft |
| Lot Size 1 | 34,428 sq ft |
| Total Lot Size | 34,428 sq ft |
| Property Size | 0.5 To 0.99 Acres |
| Floor | Room | Dimensions |
|---|---|---|
| Main Floor | Living Room | 28’ × 13’ |
| Main Floor | Kitchen | 13’ × 13’ |
| Main Floor | Bath 1 | 4’ × 5’ |
| Main Floor | Dining Room | 13’ × 17’ |
| Main Floor | Den/Office | 13’ × 10’ |
| Main Floor | Living Room | 13’ × 15’ |
| Main Floor | Foyer | 13’ × 7’ |
| 2nd Level | Bedroom | 8’ × 10’ |
| 2nd Level | Bedroom | 13’ × 10’ |
| 2nd Level | Primary Bedroom | 9’ × 19’ |
| 2nd Level | Bath 2 | 13’ × 12’ |
| 2nd Level | Bedroom | 13’ × 13’ |
| Basement | Rec Room | 13’ × 12’ |
| Basement | Den/Office | 9’ × 12’ |
Features
- Alarm System
- Driveway
- Garage
- Gazebo
- Landscaped
| Appliances Included | Oven, Dishwasher, Dryer, Washer, Refrigerator, Water Softener |
|---|---|
| Other Features | Alarm System, Sump Pump, Gazebo, Central Vac Roughed In |
Location Details
| County | Colchester |
|---|---|
| District | East Hants, Colchester West |
| Community Features | Park, Playground, Recreation Center, School Bus Service, Place Of Worship |
| Schools |
|
Contact Agent
Cheryl Jenkins
cheryl@halifax-life.ca
Thank you for reaching out
Your message was delivered, and a confirmation email has been sent to the address provided. If you do not see it in your inbox, please check your junk or spam folder.
We’re sorry, but there was an issue submitting your request. Please try again shortly, or contact us directly if the problem persists.
Open Houses
-
Sunday, December 7, 2025
1:30 PM – 4:00 PM
















































