SP-03A Stephs Street
Summary
|
Beds
3
|
Baths
4
|
Single Family
2,243 sq ft
|
Storeys
3
|
Discover The Bellhaven, a 3-bed, 3.5-bath corner unit townhome by Shaughnessy Homes in the desirable Belle Rose Park in West Bedford. Spanning 2,243 sq. ft. across three finished levels, this home blends modern comfort with stylish design. The main floor features a home office, a sleek kitchen with premium finishes, and an open-concept living and dining area perfect for entertaining. Upstairs, three spacious bedrooms include a luxurious primary suite. Engineered hardwood graces the main and second levels, while the walk-out basement offers a wet bar, and a bright bonus space for guests or recreation. Stay comfortable with ducted heating/cooling with a natural gas backup, plus rough-ins for a gas range, dryer, BBQ, water heater, and a 50 AMP EV charger. Nestled off Larry Uteck Blvd, Belle Rose Park offers easy access to schools, shops, and parks in a quiet, master-planned community. Built with Shaughnessy Homes’ signature quality, The Bellhaven is a rare opportunity to own in one of Halifax’s most sought-after neighborhoods.
Property Details
| Property Style | Residential |
|---|---|
| Zoning | BWCDD |
| Building Style | 3 Level |
| Structure Style | Townhouse |
| Structures | Deck |
| Utilities | Cable, Electricity, High Speed Internet, Telephone |
| Roof | Asphalt Shingle |
| Flooring | Laminate, Tile |
| Basement | Fully Developed, Walkout |
| Garage Type | Single, Built-In, Heated, Wired |
| Driveway | Paved |
| Foundation | Poured Concrete |
| Exterior | Vinyl, Other |
| Heating Type | Baseboard, Heat Pump -Ductless |
| Fuel Type | Electric |
| Water Source | Municipal |
| Sewage | Municipal |
| Land Features | Landscaped |
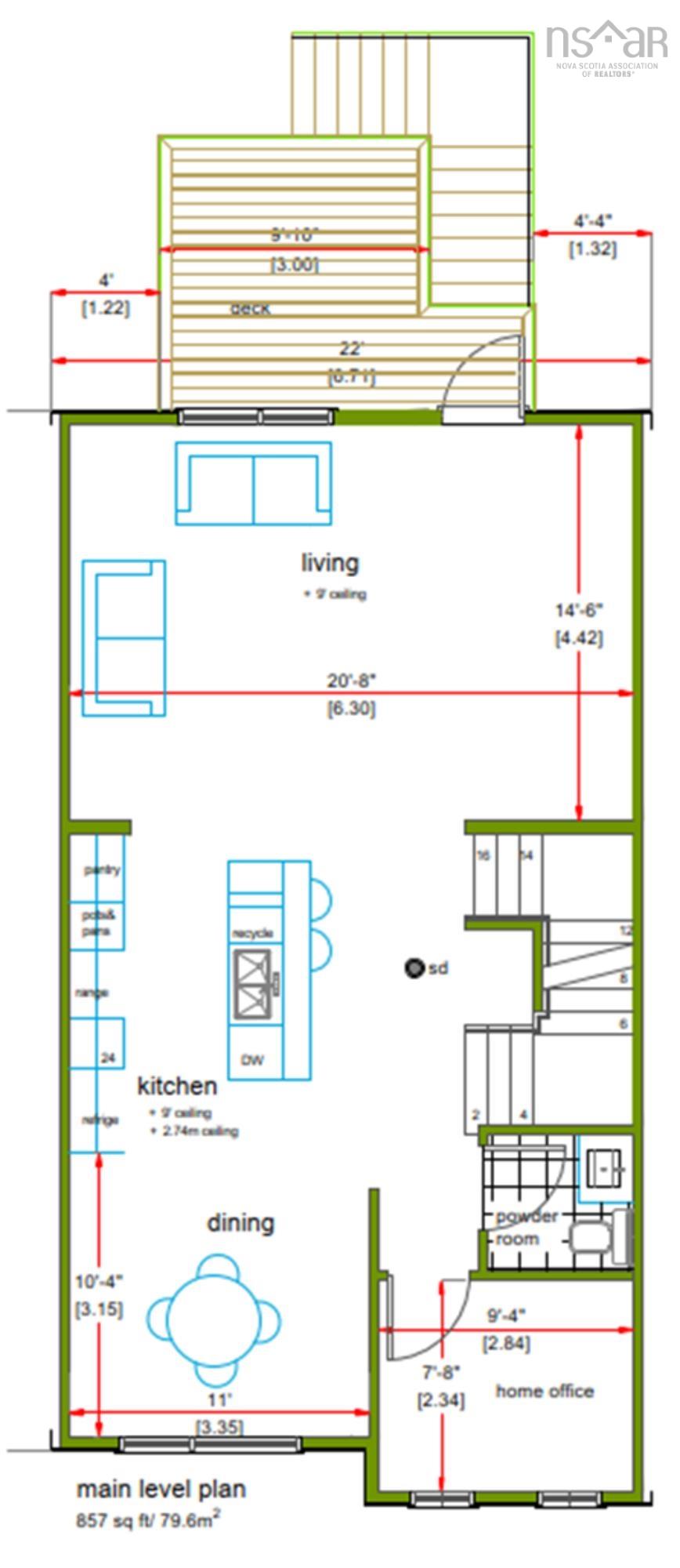
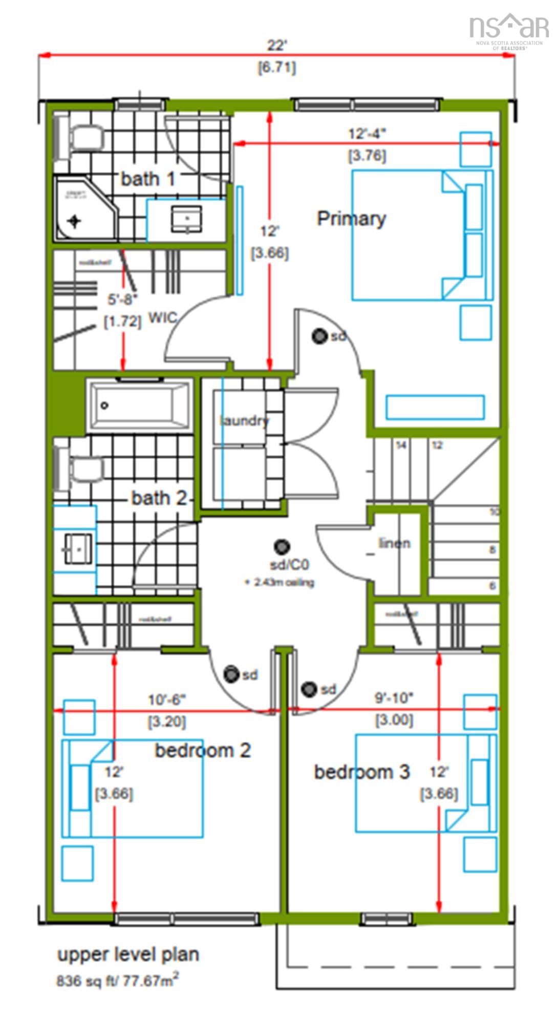
Measurements
| Main Living Area | 1,693 sq ft |
|---|---|
| Total Living Area | 2,243 sq ft |
| Lot Size 1 | 23,943 sq ft |
| Total Lot Size | 23,943 sq ft |
| Building Dimensions | 22’ × 38’ |
| Property Size | Under 0.5 Acres |
| Floor | Room | Dimensions |
|---|---|---|
| Lower Level | Rec Room | 14’7” × 10’7” |
| Lower Level | Bath 3 | 4’ |
| 2nd Level | Living Room | 20’10” × 14’7” |
| 2nd Level | Kitchen | 11’5” × 10’5” |
| 2nd Level | Dining Room | 10’5” × 11’ |
| 2nd Level | Bath 1 | 2’ |
| 2nd Level | Den/Office | 7’10” × 9’5” |
| 3rd Level | Primary Bedroom | 12’5” × 12’ |
| 3rd Level | Ensuite Bath 1 | 3’ |
| 3rd Level | Bedroom | 9’1” × 12’ |
| 3rd Level | Bedroom | 10’7” × 12’ |
| 3rd Level | Bath 2 | 4’ |
| 3rd Level | Laundry | 2’ |
Features
- Deck
- Driveway
- Garage
- Landscaped
| Other Features | Ensuite Bath, HRV (Heat Rcvry Ventln) |
|---|
Location Details
| County | Halifax |
|---|---|
| District | Bedford |
| Schools |
|
Contact Agent
Cheryl Jenkins
cheryl@halifax-life.ca
Thank you for reaching out
Your message was delivered, and a confirmation email has been sent to the address provided. If you do not see it in your inbox, please check your junk or spam folder.
We’re sorry, but there was an issue submitting your request. Please try again shortly, or contact us directly if the problem persists.





